42 Golf Lane $2,295,000 - Huntington, NY
5 Bedrooms
4 Bathrooms
2003 Year Built
4,000+ Sq. Ft.
Huntington Schools
xxxxxxx MLS ID
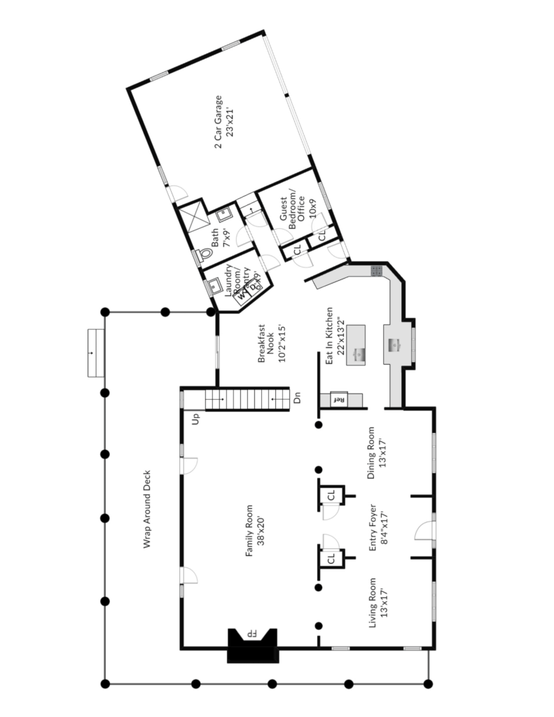
Epitome Of An Entertainers Dream Home with Luxurious Backyard Oasis Ready For Summer!! In-ground Salt Water Pool, Koi Pond, Custom Gas Firepit, Wraparound Covered Porch, Outdoor Sound System On 1 Acre. Enjoy This Completely Renovated Spacious 4 Story, 5 Bedroom, 4 Full Bath Classic Hampton Style Custom Colonial Located Near Huntington Bay. Living Area Is Over 4000 Sq Ft. No Detail Overlooked. Custom Kitchen w/ Viking Appliances, Brazilian Cherry Floors, Full House Generator, Master Suite w/ Private Deck, Basement: Rec Rm w/ Bar & Walk Out to Yard, Heated Garage. Perfection At Its Best. Minutes to Village, Restaurants & Beaches
Floor Plans & Grounds
Take an immersive look at this home.
Video Tour
Map 42 Golf Lane, Huntington, NY 11743
42 Golf Lane, Huntington, NY 11743

























